The concept of the canalhouse has been to build a luxury boutique hotel which offers all the service you expect from a five star plus hotel combined with the welcoming and warm feeling you get from a home. The aim was to create a true home away from home, in a house which you could use nearly as if it would be your own. Next to the individual rooms the guests have the opportunity to stay in the living room, the parlor room with a house bar, the garden and even in the kitchen according to their needs and mood.
The canalhouse is situated in an old canalhouse in the centre of Amsterdam, in which most of the old ornaments, floor finishes and chimneys still exist. In order to underline the concept and therefore to keep the character of an old canalhouse in a contemporary way, all ornaments were kept but painted black. This made it possible to remain all the opulence of the old times but nevertheless create a contemporary environment.
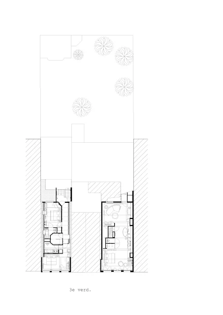
This abstraction of the ornament is also visible in the rooms. The water jar and bowl placed of ancient times has been reinvented. Bathroom and bedroom merge in to one united experience by placing the bathtub and the double vanity in the bedroom. ‘Bedzone’ and ‘bathzone’ are only separated by a full height mirror. The toilet cubicle is located in the backwall of the room and is accessible from the ‘bathzone’ to guarantee privacy.
The Canal House Hotel in Amsterdam, Netherlands was developed by the renowned hotel development and management company, Grupo Habita. Grupo Habita is known for its innovative and design-driven hotels, with a focus on creating unique experiences for guests. The Canal House Hotel is situated in a historic 17th-century building along one of Amsterdam's picturesque canals. The hotel's interior design takes inspiration from the city's rich architectural heritage while incorporating contemporary elements. The development of the Canal House Hotel involved careful restoration and preservation of the original building's historic features, such as wooden beams, ornate ceilings, and classic facades. Grupo Habita worked closely with renowned designers to achieve a unique blend of old-world charm and modern sophistication throughout the hotel. The result is a stylish and luxurious boutique hotel that showcases Amsterdam's cultural identity and provides a truly special experience for its guests.
by Concrete Architectural Associates














No comments:
Post a Comment